Bürofläche in Iserlohn zu mieten
Sie sind auf der Such nach einer geeigneten Bürofläche in Iserlohn?
Hier wartet eine repräsentative, sofort verfügbare Premium-Büroetage mit Top-Ausstattung auf neue Mieter.
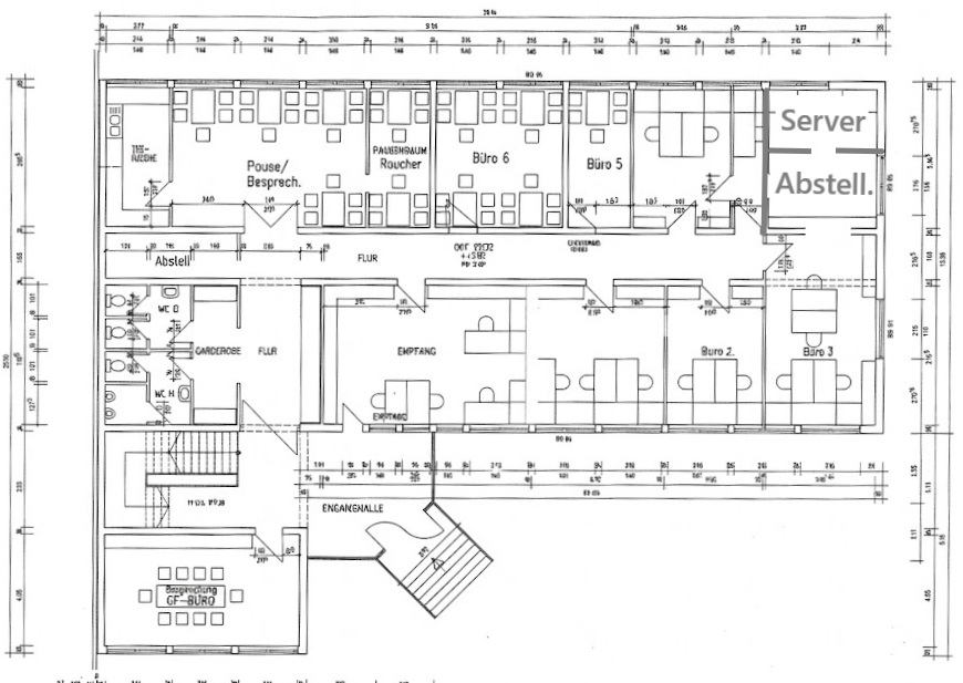
Diese außergewöhnliche Bürofläche in Iserlohn bietet Unternehmen die perfekte Kombination aus moderner Arbeitsumgebung, repräsentativem Erscheinungsbild und sofortiger Einsatzbereitschaft. Auf rund 390 m² eröffnet sich ein hochwertig ausgestattetes Büro, das keine Wünsche offenlässt.
Bereits beim Betreten der Immobilie beeindruckt die großzügige und stilvolle Empfangshalle, die Kunden und Geschäftspartner auf höchstem Niveau willkommen heißt. Insgesamt stehen neun flexibel nutzbare Büroräume zur Verfügung, die sich ideal für unterschiedliche Arbeitskonzepte eignen – von klassischen Einzelbüros bis hin zu modernen Teamstrukturen.
Ein großzügiger Meetingraum mit angrenzender Küche schafft optimale Voraussetzungen für Besprechungen, Präsentationen oder kreative Teamarbeit. Ergänzt wird das Raumangebot durch zwei praktische Abstellräume.
Bürofläche Iserlohn mit modernster Technik und nachhaltiger Energieversorgung
Die technische Ausstattung dieser Büroeinheit ist auf dem neuesten Stand und ermöglicht effizientes, störungsfreies Arbeiten. Neben einer strukturierten IT-Verkabelung mit separatem Stromkreis steht ein leistungsstarker Glasfaseranschluss zur Verfügung – ideal für datenintensive Geschäftsprozesse.
Ein klimatisierter Serverraum sowie vollständig klimatisierte Büroräume sorgen für maximale Betriebssicherheit und ein angenehmes Arbeitsklima – zu jeder Jahreszeit.
Ein besonderes Highlight ist die hauseigene Photovoltaikanlage: Der erzeugte Strom wird dem Mieter zu besonders attraktiven Konditionen zur Verfügung gestellt. Dies sorgt nicht nur für Nachhaltigkeit, sondern auch für spürbare Kostenvorteile.
Diese Büroetage in Iserlohn bietet Rahmenbedingungen für Unternehmen mit Anspruch
Für Mitarbeiter und Besucher stehen insgesamt 14 PKW-Stellplätze direkt auf dem Grundstück sowie zusätzliche Besucherparkplätze zur Verfügung – ein entscheidender Vorteil im Geschäftsalltag.
Die Sicherheit wird durch eine moderne Einbruchmeldeanlage mit Aufschaltung zu einem Wachdienst gewährleistet.
Dank des hervorragenden Pflegezustands kann die Fläche ohne nennenswerten Renovierungsaufwand übernommen werden. Das „Plug & Play“-Konzept ermöglicht einen sofortigen Start – ideal für Unternehmen, die keine Zeit verlieren möchten.
Bei weiterem Wachstum stehen im Gebäude zusätzliche Büro- oder Lagerflächen im Obergeschoss und im Souterrain zur Verfügung.
Fazit:
Eine seltene Gelegenheit für Unternehmen, die eine sofort nutzbare, technisch hochwertige und repräsentative Bürofläche in Iserlohn suchen.
Mietpreis auf Anfrage.
Sie haben noch nicht die passende Immobilie gefunden?
Dann registrieren Sie sich jetzt in unserem First-Listing-System und erhalten Sie neue Angebote exklusiv vor der Veröffentlichung:
| Objekt ID: | G02616 |
| Verfügbar ab: | Vereinbarung |
| Miete: | auf Anfrage EUR |
| Provision für Mieter: | 2 Monats-Kaltmieten zuzüglich MwSt. |
| Lage: | Gewerbegebiet |
| Erschließung: | voll erschlossen |
| Dachform: | Flachdach |
| Ausbaustufe: | voll ausgebaut |
| Ausblick: | Straße |
| Bauweise: | massiv |
| Befeuerung: | Gas |
| Gewerbeeinheiten: | 1 |
| Zimmer: | 9 |
| Kellerräume: | nach Bedarf |
| Gesamtfläche: | 390 m² |
| Etage: | EG |
| Etagen: | 1 |
| Objektzustand: | top |
| Ausstattungskategorie: | top |
| Heizungsart: | Zentralheizung |
| Befeuerungsart: | Gas |




















